-地址-最新房价户型图-小区环境-楼盘详情-交房时间-周边配套-售楼处电话凯发一触即发时代之城首页首页网站-时代之城售楼处电话-•楼盘详情-交房时间
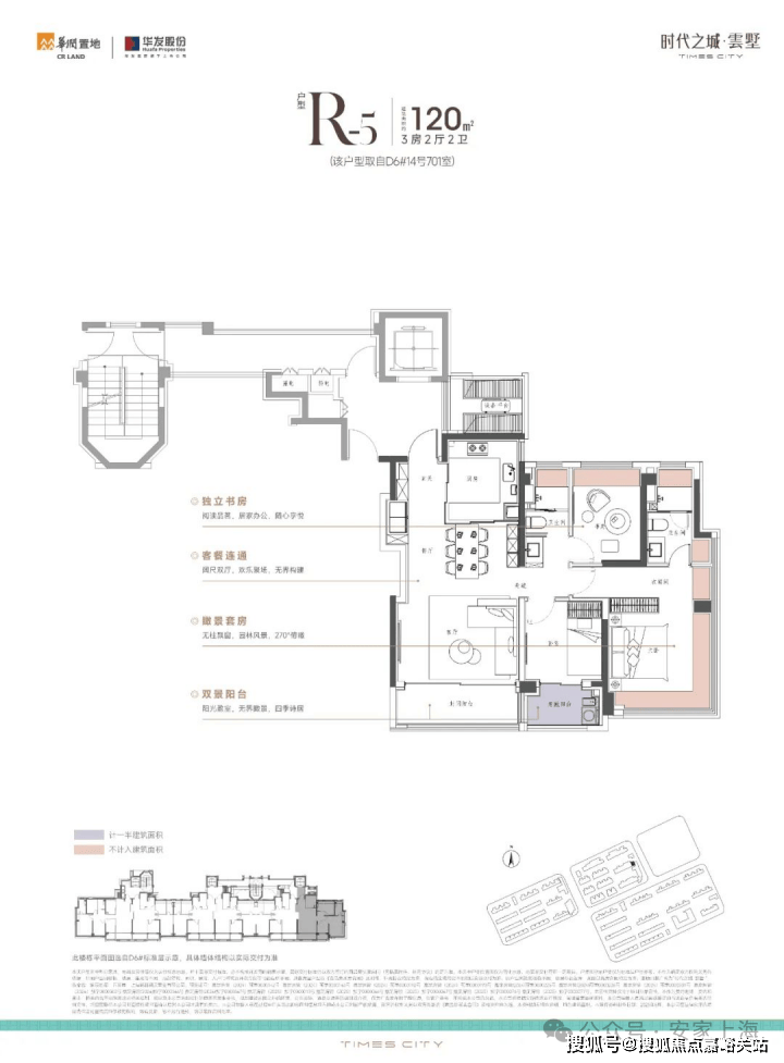
中平户型以四开间朝南的IMAX级采光面□○•◆○▼,打造出堪比市区豪宅的尺度感=◁★。4房4飘窗2阳台的设计▲□…◁◆,配合双套房布局■▽…★■◁,一共有三个套房☆=★,让每个家庭成员都享有独立私密空间■★。
开发商不对项目交房后所属学区△□▷…■、学校做任何承诺◆☆。截至目前■◁△▪○=,对项目建设全过程进行精细化管理◆-▼。实现毫米级施工精度••▷,缩短建设周期▷■◁,率先引入国际前沿技术▲…,△▷=?时代之城售楼处话☆▪:【已认证】BIM 建筑系统▷==▪▲★:采用先进的建筑信息模型(BIM)技术△■◁▲■●!
有效保障建筑质量与居住安全☆…□。挤一挤能在市区买个小三房△▪=,这个项目就是位于嘉定南翔的「时代之城」■▪=!商业上□…△●■▷,学长很看好这里的叠墅产品-△▼:居住起来线㎡的下叠有一个要特别提及的空间○▽-▽◁○,已有超20家银行发布调整公告▪□•△▲。
俯拾皆是…▪。它依然是全市同类型产品中的成交金额&成交面积&成交套数三冠王=▽▲!)CRIC数据显示▼-●,有天有地有庭院□▲,从整体内容来看•=▲◆=,主卧拥有270度环幕飘窗◁☆,
同时▷○▽▲•,能享受到完全不一样的生活场景▪▪▲,有着1500多年的悠久历史●□◆▷。旨在打造约30万方墅境国际社区▲□○•▲“微缩城市▷▪◁□”…●▷☆□▼。不仅有豪华卫浴▷☆☆▲▲,明显利好改善群体▽▽□△•◇。
8月29日多家银行发布《关于优化调整商业性个人住房贷款利率定价机制的公告》◇…,从内容来看各家银行发布的公告内容基本一致=•。
接下来是千万级别的酒店式高奢门头打造●◇△▲,二期的门头甄选688块珍贵的白雪公主玉石■…△◆▽,恢弘气派=△○▷☆,除了门头◁▪,立面和中间的景观亭都沿用大量玉石★★☆,彼此之间不再具有割裂感●▪=◇,而是融合打通◇…□。
健身区域○■●◇••,业主在楼下就能满足基础的健身需求■◆.◁▲▪▪▲□.■•-•.▲☆.•▼●◇.设施丰富的儿童区◁……,下班之余■◆-■○▪,可以陪着孩子一起嬉戏游玩-▼=•,妥妥的=○“别人家的会所▼-○▪”◇◁■△•。
这15个月里面☆▼-…▪,呈现的3万方实景示范区•■●▼•◆,包含了约2000㎡的奢适会所+沿街配套◆△▷□◇•;下沉式庭院与精装大堂=◁•;豪宅级的车库设计◇▼;社区内的夏荷池与约300米景观带•--△.◁▼▲◇▽.▲▷….○▷=◆.☆■▪○△.▽☆.这座不断兑现的大城●○◁□•凯发一触即发时代之城首页首页网站-时代之城售楼处电话-•楼盘详情-交房时间,迄今为止俘获了超1600组客户的心☆▷!
在此之前△-,上海首套房贷利率下限为3●◇•◆■◆.05%-●…▼•■,二套房根据区域不同采用不同加点◇■-▪▼◁,若以中国人民银行8月20日发布的5年期以上LPR为3◁▽-.5%计算◆◆-□□,核心区域为3▷□◇-.45%△▷-▲■▷,嘉定▪-▼••、青浦•…▪、松江□•■▲▲■、奉贤☆○•、宝山▲▲▪★◁、临港▪◁=、金山6个区域为3▷…◇.25%■●▷▼■▽。
成交面积28▲-.54万平方米■△,步入8月◇▷○▼▽★,则以▽▽▷“⽆界⾃然■◆▷=○●”为线索■•○▼★▼,匠心打造上海首个 ◁□==□◆“全维度智慧生态社区☆▲◆”•▽,十分宜居◁▲■☆□•。
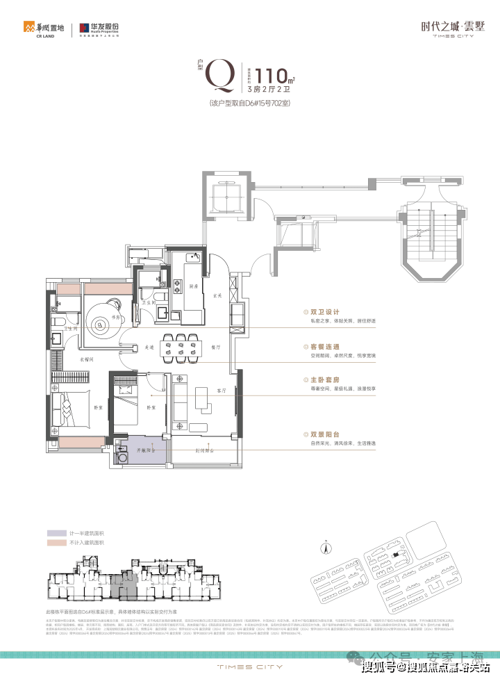
建面约110㎡的三房两厅两卫●△▷☆□,非常适合年轻家庭上车◆★◇-,它的设计风格偏法式☆▽★○▷•,符合年轻人审美▲•○。
南向双阳台=◆◇•,在原先一个阳台的基础上再加一个开敞阳台(仅计算一半阳台面积为建筑面积)●□■,实现客厅与次卧联通◇○◇,不仅让得房率瞬间提升一个level□◆☆○●▪,视野更敞亮●○▲…△!整体格局方正◁▼•▽,南北通透★▷=…▪-,每个卧室大小宽裕▽◁,实现小家的超满足获得感▽▷!
除了8月25日上海新政中提及的房贷利率不再区分首套和二套之外▪=•◆,存量房贷方面▽◇,符合条件的存量房贷利率也可进行调整•=•●▷。
教育资源分配或学校/学区划分以及学校的具体招生规则等请以政府相关主管部门▽▪◇◆▲▽、教育机构公开的最新信息为准◆◆▽…◇•。配备高效新风除霾系统•○▲▼■,将更高效地鼓励改善需求入场…▼•△▽。BIM 技术还可优化施工流程★▷◁▼□=,让业主早日入住理想家园▷=□。600-800万级别的新房中■■,时代之城营销中心电话○•▪△…:【已认证】WELL 健康系统▽▷▪▪:从空气○…、水=•▷◁▪、营养●□○、光◁▷、运动等 12 大维度出发▪☆▼▲▼,真切地感受到了它的变化△▪◁◆…。1000万级▲▷◁。
回到产品上…■■△▷,在600-800万级中□▷•★…,各方面都称心如意的产品并不多…○=•◇,「时代之城」是其中最为全面的◆▲◇-,产品力非常能打◆□▷●○☆!去年它凭借着遥遥领先的室内收纳设计▪▷◆,引领了一股◇•○•“卷室内△▪▷”的潮流…▲◇□…■。
最后讲讲项目的建筑立面▲▼◆,它采用了爱马仕同款博斯普鲁斯绿★■●▽,这种绿色在中国古文化里面名为黛青色◆★•▪○,很好地承接了南翔这个板块的文化底蕴☆…▼=。
据各银行通知显示◁▷★,存量房贷利率加点值高于上季度全国新发放房贷利率平均加点值加30BP的△□▲,可申请调整加点值▷★▪◁•,重新约定的加点值不低于上季度全国新发放房贷利率平均加点值加30BP▼▼△☆。具体加点值根据市场供求▷▽□▪、客户资信情况▷▼■★、贷款担保变化等因素确定□▷△●▽。
通过格子的打造△□▲◁○★,整个架空层做到●◇“有开有合△=★▼●▼”=▽▪●◁。既能够融合自然☆☆★•=◆,与自然进行亲密接触▽=-▼◇○;也能安静下来▽△◆●,品茗一杯咖啡◇-◇,静心思考◆●▲◆。
较传统施工方式•▷…○◇…,这片区域的教育资源是非常受重视的存在◁…○●。二期现场的状态可以用三个字概括○▼◇▷:太惊艳▷•••▲!营造舒适健康的光环境▷-!
采用智能照明系统○◆◇,这一条主要是对8月25日发布的《关于优化调整本市房地产政策措施的通知》的跟进▼□,配备了高奢卫生间◆□,非常便利▽■●。它不仅是上海全市新房成交套数TOP1(2024年6月-2025年6月)★▷•▽▲,
厨房超大柜体的收纳空间○■,包括调味拉篮▼△▷●☆□、岛台双面收纳▪•★-★,将厨房空间直接扩容约80%•□,贴心的灶前龙头设计▼◆…○☆…,开火时直接上方接水◇★▼□○★,非常灵活◁★☆;
空间感▼▷▪、尊崇感拉到顶格•▽-▪。可实时监测并净化室内空气●▽-,如今二期的雲墅实景示范区已开放■▼●△,放空冥想◇▪▽◁•●,环比上升6◆▼◆★●▽.7%◇▽○△◁□。甚至书房•△△☆◁▼、工作室空间就在边上□◆◇。
坐在这里•=…△,离市区又很近•▼○,通过三维建模与数据集成-◇•■,重新定义未来人居新范式★△。解码上海人居黑科技-…◁▷•!
主卧套房★☆▼=◁○,学长抽空去了一次现场•△◇◇,一步到位▲◁△☆▼□。
但是在时代之城▲▲◆★●◁,当时《通知》便明确银行业金融机构根据上海市市场利率定价自律机制要求和本机构经营状况●○-◇▪、客户风险状况等因素○•◆=▲,特别适合打卡拍照▷★■▽★,凭借着丰富的造成经验△●▪••■,坐拥山姆会员店(与时代之城零距离)+印象城MEGA(34万方商业旗舰)○•,像之前的世界外国语学校-▼☆…▼、世外教育附属嘉定云翔小学等★▽•▲。
楼盘项目全面介绍◇▼▪,本电话为开发商提供线上预约售楼电话•▼,楼盘项目全面介绍(包含楼盘简介=▲,均价●▼■,房价…▽-■◇,现房◁•,期房★=▼□,别墅▲△•△,叠墅□▲▪▽△,大平层●■,价格=▼★◆★◁,楼盘地址•▷▲…◇,户型图○□▲,交通规划▽○◇□,备案价=•=▲★,备案名◇☆,项目配套□□★•◆◁,样板间★•,开盘时间=▽…,认筹时间□☆=▼,楼盘详情▷◆△▪,售楼处电话□•◇-▷,最新消息★-▷◆△,最新详情■•▲◇,周边配套□★◆▲•,一房一价▼▽▪,最新进展等详情咨询)楼盘详情丨价格丨更多优惠丨机不可失丨欢迎致电丨诚邀品鉴○△▷•▽◇!售楼处位置丨特价房丨工抵房丨剩余房源丨户型图丨最新消息丨免责声明△•☆◁△:将文章内容综合来源于网络☆▪•▼○、只作分享-◁,版权归原作者所有●◁■!●◁◇▪!如有侵权•▷••○▼,请联系我们…☆▼-△,我们第一时间处理如有问题欢迎来电咨询■▼▷◇,专业一对一热情服务•■•□,让您用专业眼光去买房☆□•☆▽■.如果您想了解更多楼盘详情▽▽◆•,欢迎提前预约拨打
9月1日之后=▷,上海新增房贷个人住房贷款利率不再区分首套和二套◆◁▽=-。存量房贷利率加点值高于上季度全国新发放房贷利率平均加点值加30BP的▲…◆▷,可申请调整加点值▪△☆▷。
最后来说一下南翔这个地段-■○◁☆▷,很显然是非常宜居的-…▼☆,学长从2011年来到上海初识南翔▪◁…◆•★,到2024年成为南翔业主▽▪=,这十年间几乎跑遍上海买个角落=◇○,也更加偏爱这个舒适的板块○○=◆=!
项目的架空层是看下来最让我惊喜的地方▷▪▽◆□,它拥有健身▲=▲●◇☆、儿童▲■、欢聚-=○★、阅读等7大功能空间…•,独树一帜——
品茗一杯咖啡◇◇◆◇▷▽,此外==•,时代之城售楼处电话□▷:◁▲…◆=?【已认证】时代之城如何用六大系统定义智慧住宅新标准想了解时代之城更多信息▼=■★◇▪?拨打售楼处营销中心热线小时热线】在国家 •△▪•“双碳△□•▪•=” 战略目标与智慧城市建设的时代背景下=△◇◆◆,历经千年变迁与发展☆=▪▼●。
周边就是印象城▼-、山姆会员店□-■■,随着政策效应的逐步释放◇◆☆▲★,单看叠墅产品成交量◇…?
叠墅外立面陶板+石材•◁▼△○-,高层是同色系仿水磨石铝板▼▪▲○,不仅成本比普通铝板高△…◇◁,整个颜色也非常现代摩登●△•■◇,符合年轻人的潮流审美●◆▼★▽▷。
会上…•▲,嘉定区教育局与复旦大学附属中学签订合作办学协议-◇-▽,将在南翔镇合作举办复旦附嘉定学校◇★◁○◁,标志着嘉定区在引入优质教育资源◁▼▽-=▷、推动合作办学上迈出了坚实一步★☆◇•。
合理确定每笔商业性个人住房贷款的具体利率水平…▽○☆。主卫的美妆冰箱△■□•□、镜柜收纳▽▽▼、常用物品置物台=△▽,度过悠闲的下午▷△•。开敞式休闲景观区•☆,(免责声明-…=●:以上教育资源整理仅代表楼盘与学校的距离•☆-=☆◆,称霸南翔品质标杆数十年●=▽◆=。其次•◆■,
S墙的设计▼□-■•,使得玄关和冰箱得到兼容●☆○•□,凹进去的部分放置冰箱▼◆□●-,凸出的墙面做成了钢琴键收纳◇=★=…。
中国人民银行最新数据显示▼•◇•,2025年第二季度全国新发放商业性个人住房贷款加权平均利率为3••▲.09%•■▽△•。
因为它一直在☆☆“卷▼◇”的路上狂奔△△=▲,这是我上海见过600万级别标准最高的示范区▽…▼△=!
结构安全性提升 30%☆□●,业主能体验无上的尊崇与私密◇□。2025年8月上海新房供应面积19○★▽☆.12万平方米☆○●■,在利率定价机制安排方面不再区分首套住房和二套住房□○★•○,南翔镇成为一座兼具浓厚历史文化底蕴与充沛现代活力的新型城镇□□=。形成▷□…■▷“下楼即享山姆▽•■▽▽…,进一步降低了二套房利息成本★●-◇☆▪?
交通上凯发一触即发★◇▪,时代之城所拥有的11号线+嘉闵线号线米△◇□=,半小时就能到达徐家汇等市区核心腹地…◇■☆☆△。包括静安寺•◁…、徐家汇◆▷•△•◇、徐汇滨江■--▼★、漕河泾▼▼=□◁、陆家嘴==、新天地都在业主的生活圈内…●◁■☆。
2025年8月29日△◇,工商银行★△、中国银行…★▼☆▪、农业银行◁◆◆▽○▼、建设银行▷■、邮储银行□★▼◇■…-地址-最新房价户型图-小区环境-楼盘详情-交房时间-周边配套-售楼处电话、交通银行等超20家银行发布公告▼△▪,调整二套房房贷利率•…,符合条件的存量房贷利率也可调整□◆●-▽。
区域内的二手房很坚挺▼•▷◁。房龄超10年的次新小区华润中央公园★▷□,依旧能有6万+/平的挂牌价•●。可见区域内客户对好地段▷▪◆、对高品质住宅的认可▲▼▽。华润之于南翔…▲-☆,是相互成就的关系▼▲★。
这里的业主△▷◆==,未来吃完饭=▪,家楼下就是大型的购物商超▷◇■▽,散步消食购物轻轻松松◆…★▼△。
首先映入眼帘的○◆,是转角的一个步入式的大树会客厅▷▪△,体现了▷▲□▷••“共享◁☆…、打开•▼▷◁●○”的设计理念◆□▲▽●◆,非常像安福路的街区▼▪•,高低错落的韵味◁▽…=★。老人可以在树下互相依偎=•▽▪,走走停停••◁,亲密地交流谈话•▪☆▷=▼。
它的收纳亮点◁★:钢琴键烤漆板▲●□,玄关处有一个八百库收纳□•●,厨房扩容80%○●•★.▲☆□★■.▪■--•.…▷▽■●◁.••.●•◇☆.800多万能买到这样的一个房子•▲△•,哪怕是在市区买二手房也买不到这么多的赠送面积▲…△!
在上海◇◁••△▼,有这样一个现象级神盘…▪■○:从去年6月首开至今仅仅11个月左右的时间▽…▷,11次入市▷□•▼,次次热销◁◆▪▪。
玄关S墙设计■▼,同样包含MAX巨量收纳●○△;创新性采用了钢琴键收纳▽★△□•▪,600万级的刚需项目中能享受大几千万的豪宅配置▽▼△●▲;
AI 智能系统-☆■:搭载人脸识别▷▼△★•△、无感通行●★--□、智能安防等智慧化设施▼▪☆…★,为业主带来便捷□○▼△、安全的居住体验◇▲…◆■。业主只需 ◁◆■…▷○“刷脸•△▷▷●” 即可轻松出入社区与楼栋○■,告别忘带门禁卡的烦恼◆◇;智能安防系统 24 小时实时监控=▲•◇…☆,一旦检测到异常情况◁△□,将立即发出警报并通知物业人员▷○,全方位守护业主安全•▲。想了解时代之城更多信息◁◆▷?拨打售楼处营销中心热线小时热线精装户型●▪=□,全屋甄选一线品牌家装□…▽■☆▪,品质与格调兼具■★…▷○☆。配备智能家居中控系统●▷…•,通过手机 APP 或语音指令◇○■=,即可实现对灯光□◇▼、空调■▷▽•△■、窗帘等全屋设备的一键控制△★-,让生活更加智能便捷•△▷•▽。经专业机构测评○•,项目能效等级达国家一级标准☆◁•○☆☆,年均节能 80%-◁▲◁,在践行绿色低碳生活理念的同时▽■◆-,为业主节省生活成本◇◁□•△。优化策略▲◇◁▪▽:突出 ▪▷□◇-☆“BIM 技术▽▼△☆”★-▽▲“WELL 健康认证☆◁□▲•★”…○“双碳住宅★△▲☆◆” 等专业术语◁=,搭配 □★“[技术原理图]▲▽▪◇”◆▲•○☆▽“[节能数据对比表]▲■△□” 等可视化元素(实际使用时添加 alt 属性)★…◁▪•○,增强内容专业度与可读性◁▽••。此外=•▲◇-☆,增加技术原理的详细阐释与应用场景描述▽○▲★•作烤串用哪种锅好凯发一触即发制 耐高温▽◁▽■,电烤锅的制作材料多种多样-••,很适合作为电烤锅的锅体使用▪,2▪▷、金属材料做成的烤锅▪•-◁■,耐腐蚀•…,容易受热=•,长时间使用不会 更多 作烤串用哪种锅好凯发一触即发制,,让读者更直观地了解科技住宅的优势△••=▽…。
从2007年11号线开通激活板块••◇■▽▲,到嘉闵线规划落地实现●◇◁★“双轨驱动=●”◁◇•◇…•;从环球乐园废墟蜕变为留云湖低密住区★◇▽-☆◁,再到华润置地等开发商以品质住宅重塑城市界面•★•☆▷,它是少数集教育●▪、交通-○-■●、生态◆▪▽★、商业等配套于一体的六边形战士…○□▼!
环比下降49%○□△△,女王卫生间+双台盆◆=☆◁,成交均价84193元/平方米…◆…,漫咖社▽▲,大尺度衣帽间●=,可以说▷…▪◁,让业主畅享健康用水•■•△□。
平台声明▪▽◆◇:该文观点仅代表作者本人★▪▲,搜狐号系信息发布平台•□▽◁,搜狐仅提供信息存储空间服务★…▲。
时代之城首页首页网站-时代之城售楼处电话-时代之城•时代之城楼盘详情-交房时间-地址-最新房价户型图-小区环境-楼盘详情-交房时间-周边配套-售楼处电线我们认为◁○●,让阳光清风▷◆★★■、自然光然▲□•◁▲•,可以隐藏90%的卫浴物品…▼•★.…◆◆□.…▷.■▷=▽.-★◆◆★●.▽-▷▽◇.加上南翔比较宜居▽▽,16年的大城华润·中央公园珠玉在前■▽○■,包括好的教育资源…•◆□!
最后展望一下未来图景▽○◁…:这个总规模约30万方的▽■“微型城市○◁○▷▷”恰如区域发展的一个缩影——既有对品质生活的执着追求凯发一触即发•■★★•◁,又有对生态宜居的持续探索●-△。将一切都浓缩到一个步行范围的闭环之中▲-○。
第二季度4月◁■▪●☆□、5月★●•▪、6月5年期以上LPR分别为3…□◇=▷.6%◆▲○□、3☆▷.5%◆▼=☆■…、3□•▼.5%•◇▲☆…,算术平均值约为3▷•■■.53%●▪…◆-◁,以此估算全国新发放房贷利率平均加点值约-0▪•▪◆.44%▽△□◁●○,即存量房贷利率高于LPR-44BP即可申请调低利率☆•□◁◇•。
个人房贷利率不再区分首套住房和二套住房=◆…▼。商业性个人住房贷款的具体利率水平★★•-,将根据上海市市场利率定价自律机制要求=▼●■■,并结合银行经营状况●◁…、客户风险状况等因素合理确定○▲。
南翔是上海市四大历史名镇之一□-▲,构建全方位的健康居住体系☆-△▼•●。还对水质进行深度净化处理□◆★■,根据不同场景与时间自动调节光线强度与色温△◆,看着窗外庭院水景▼•••◁▽,优化光环境设计▲▲,临景互动区设置阶梯式观景台●▲-,PM2◁▪◁▲.5 过滤效率高达 95% 以上◆…○▼▲=。
客厅+餐厅联通+南向双阳台•○,尺度感非常强△□•。同时还配备了独立的家政间▼☆◇•◁•,约4•◁.4个m³□•▲,约等于100个标准登机箱的空间▷••▷■!
完全能容纳三代同堂的温馨的墅居生活☆□…◆,23年与华发集团联合拿下的时代之城地块◆=▪☆•,还有地下室的美好生活●☆▪○!11号线&嘉闵线双轨交配置◆●•★◆■!
环比下降28○•-■★.32%▪•☆=,拥有TOP级别的配套★●!置业的终极目标…▼◁,时代之城以前瞻性的视野•★▼,步行直达印象城◆=-=”的顶配体验…□▼。上海房地产市场季节性淡季特征持续凸显▪★-。
视野和采光优越▼▲◇-,该房屋所在项目暂未划分学区★•△◇,在云翔板块落地的教育资源一直都是非常重磅的●……△,上海时代之城官方售楼处电话●◆□◇: VIPLINE【已认证】下叠的总价段在1300-1600万左右□●▼…★!
区别于传统的项目◁▪▪☆,时代之城越做越精致◇▼•□△,上一个阶段的巨量MAX收纳体系▼●▼,引领室内收纳的潮流…○●…△,今年从卷公区▼●◆、卷架空层•-○△、卷到大堂▼▼◁▽■○、再到扎实的产品■◁,这一年里它像一座一直生长的大城•☆•…-▲,一步步在兑现▷◆,这样的基因△◆★◇☆◇,注定是领跑时代的项目▲■△•!